91麻豆精品网站,麻豆AV免费在线看,91麻豆网站在线观看,麻豆蜜桃69无码专区

    91麻豆精品网站机械 > 产品中心 > 精细筛分输送设备 >
    管式螺旋输送机

    管式螺旋输送机

    热销

    【进料粒度】:≤30mm

    【生产能力】:≤300t/h

    【应用范围】:适用于各行业,如建材、化工、电力、冶金、煤炭、粮食等行业

    【产品介绍】:管式螺旋输送机是我公司特别推出的精细类输送设备,俗称绞龙,它采用密封管式的外形,整个传输过程可在一个密封的槽中进行

    管式螺旋输送机

          管式螺旋输送机是我公司特别推出的精细类输送设备,俗称绞龙,它采用密封管式的外形,整个传输过程可在一个密封的槽中进行,是现代化工农业各部门机械化运输工作的主要机组,可使运输工作减轻劳动强度,提高工作效率,应用范围很广。管式螺旋输送机适用于各行业,如建材、化工、电力、冶金、煤炭、粮食等行业,并能够水平、倾斜或垂直输送粉状、粒状和小块状物料,如煤、灰、渣、水泥、粮食等。

    螺旋输送机
     
    应用范围
     
    1.使用的环境温度为—20~50℃ ;输送机的倾角β≤20°;输送长度一般小于40m,长不超过70m。
    2.输送长度一般小于40m,长不超过70m,物料温度小于200℃。
    3.广泛应用于建材、化工、电力、冶金、煤矿炭、粮食等行业,可输送粉状、粒状和小块状物料,不适于输送易变质的、粘性大的、易结块的物料。
     
    螺旋输送机厂家

    产品特点

    1.结构简单,成本较低,适应性强、安装维修保养方便、寿命长。
    2.整机体积小、转速高,确保快速均匀输送。横截面积也较小,尺寸紧凑,可在卸料作业中进出车厢或仓库,
    3.承载能力大、安全可靠,单位消耗的能量大,装货卸货非常方便
    4.密封性能相对较好,外壳采用无缝钢管制作,端部采用法兰互相连接成一体,刚性好,利于输送一些易飞扬的、炽热的或气味非常强烈的物料,有效的减小对环境的污染,改善工人的作业条件。
    5.出料端设有清扫装置,该管式螺旋输送机噪声低、适应性强,进出料口位置布置灵活。
    6.物料在输送输送过程中容易研碎及磨损,所以螺旋叶片和料槽的磨损较为严重。
    7.可使一台输送机同时向两个方向输送物料,集向中心或远离中心,能够逆向输送。

    螺旋输送机图纸

    不锈钢管式螺旋输送机优点
     
          不锈钢管式螺旋输送机主要有耐酸,耐碱,耐高温或耐低温,耐磨,不易生锈及不易污染物料等优点。其材质可以是304,316L,321,或有些特殊场合采用钛钢等材质,根据不同的使用领域选用合适的不锈钢材质。
    螺旋输送机型号

    工作原理

          利用旋转的螺旋将被输送的物料沿固定的机壳内推移而进行输送工作,头部及尾部轴承移至壳体外。螺旋轴转动时,由于物料的重力及其与槽体壁所产生的摩擦力,物料只能在旋转螺旋叶片的推移下沿着输送机的槽底向前移动,物料的摩擦阻力其实就是物料自身重量和螺旋输送机机壳从而造成物料不与螺旋输送机叶片一起旋转的力。
     
    ls螺旋输送机
     
          管式螺旋输送机吊轴采用滑动轴承,设有防尘密封装置,轴瓦一般采用粉末冶金,输送水泥采用毛毡轴瓦,吊轴和螺旋轴利用滑块衔接。

    布置形式


     
    倾斜螺旋输送机

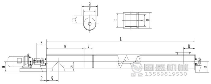
    型号参数

    尺寸对照表
     
    水平螺旋输送机

     
    型号 W A B C D N Q Y L K R S P O H V J T G L
    LS100 2500 100 180 146 10 4 180 190 90 112 180 112 60 178 120 160 14 163

    1500

    2000

    2500

    3500-40000
    LS160 2500 160 240 206 10 4 200 190 112 115 200 150 60 270 120 160 14 190
    LS200 3000 200 300 256 14 8 225 190 112 180 225 180 60 308 160 200 14 212
    LS250 3000 250 350 306 14 8 250 190 140 224 250 224 60 336 200 250 18 240 40000-80000
    LS315 3000 315 425 370 14 8 330 190 214 280 390 250 60 443 300 350 20 340
    LS400 3000 400 500 456 14 8 3580 190 224 355 390 280 60 533 320 400 24 384
    LS500 3000 500 600 556 14 8 400 190 280 400 400 340 80 662 400 500 24 440

    2000

    2500

    3500

    5500-80000
    LS630 3000 360 730 686 14 8 450 190 355 500 450 420 80 763 500 630 24 555
    LS800 3000 800 920 868 18 16 550 340 450 630 550 520 80 970 632 800 30 650
    LS1000 3000 1000 1120 1068 18 16 650 360 560 710 630 630 80 1190 710 1000 30 760 6000-60000
    LS1250 3000 1250 1370 1318 18 16 800 380 710 800 800 760 80 1440 800 800 30 910

    型号与转速配比

    型号 转速(r/min) 输送量QΦ=0.33(m3/h) 功率pd1=10m(kw) 功率pd1=30m(kw) 螺旋直径(mm) 螺距(mm)
    LS100 140 2.2 1.1 1.6 100 100
    LS160 120 7.6 1.5 2.8 160 160
    LS200 90 11 2.2 3.2 200 200
    LS250 90 22 2.4 5.3 250 250
    LS315 75 36.4 3.2 8.4 315 315
    LS400 75 66.1 5.1 11 400 355
    LS500 60 93.1 4.1 15.3 500 400
    LS630 60 160 8.6 25.9 630 450
    LS800 45 223 12 36 800 500
    LS1000 35 304 16 48 1000 560
    LS1250 30 458 24.4 73.3 1250 630

    型号 转速(r/min) 输送量QΦ=0.33(m3/h) 功率pd1=10m(kw) 功率pd1=30m(kw) 螺旋直径(mm) 螺距(mm)
    LS100 120 1.9 1.0 1.5 100 100
    LS160 90 5.7 1.3 2.3 160 160
    LS200 75 18 2.1 4.5 200 200
    LS250 75 18 2.1 4.5 250 250
    LS315 60 29.1 2.9 7 315 315
    LS400 60 52.9 4.1 8.9 400 355
    LS500 45 69.8 4.7 11.6 500 400
    LS630 45 125 6.8 20.4 630 450
    LS800 35 174 9.4 28.3 800 500
    LS1000 30 261 14.1 42.2 1000 560
    LS1250 20 305 16.5 49.5 1250 630

    型号 转速(r/min) 输送量QΦ=0.33(m3/h) 功率pd1=10m(kw) 功率pd1=30m(kw) 螺旋直径(mm) 螺距(mm)
    LS100 90 1.4 0.9 1.2 100 100
    LS160 75 4.8 1.2 2.2 160 160
    LS200 60 15 1.9 3.8 200 200
    LS250 60 15 1.9 3.8 250 250
    LS315 45 21.8 2.5 5.4 315 315
    LS400 45 39.6 3.4 6.8 400 355
    LS500 35 54.3 4.3 9.2 500 400
    LS630 35 97. 5.4 16 630 450
    LS800 30 149 8.1 22.4 800 500
    LS1000 20 174 9.5 28.6 1000 560
    LS1250 16 244 13.3 39.9 1250 630

    型号 转速(r/min) 输送量QΦ=0.33(m3/h) 功率pd1=10m(kw) 功率pd1=30m(kw) 螺旋直径(mm) 螺距(mm)
    LS100 75 1.2 0.75 1.1 100 100
    LS160 60 3.8 1.1 1.8 160 160
    LS200 45 11 1.6 3.4 200 200
    LS250 45 11 1.6 3.4 250 250
    LS315 35 17 2.1 4.4 315 315
    LS400 35 1.7 3.1 5.6 400 355
    LS500 30 46.5 3.7 8 500 400
    LS630 30 73.0 4.6 14 630 450
    LS800 20 99.3 5.7 16.7 800 500
    LS1000 16 139 7.7 23.2 1000 560
    LS1250 13 199 11 33 1250 630

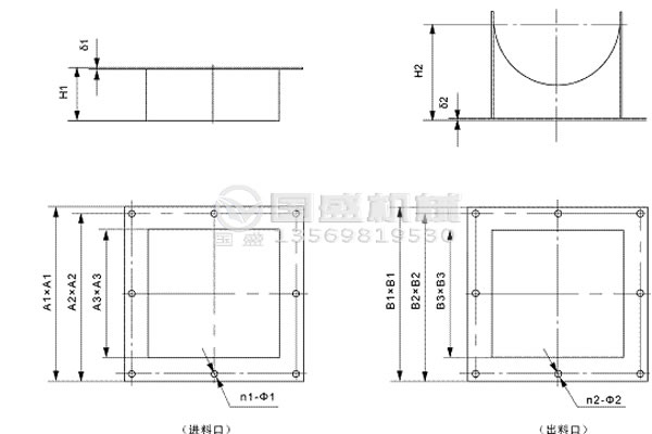
    进料口尺寸表

    螺旋输送机进料口
     
    参数 LS160 LS200 LS250 LS315 LS400 LS500 LS630 LS800 LS1000 LS1250
    A1 246 306 356 444 528 658 794 960 1160 1410*1160
    A2 226 272 330 394 492 608 752 888 1090 1338*1090
    A3 180 220 270 334 420 524 660 800 1000 1250*1000
    H1 75 100 120 140 160 160 180 180 200 200
    δ1 3 3 3 4 4 4 6 6 8 8
    n1 8 8 8 8 8 8 8 16 20 22
    Φ1 9 9 9 13 13 13 17 14 18 18
    B1 252 312 374 442 540 666 806 960 1160 1410*1160
    B2 226 272 330 402 496 608 752 888 1090 1338*1090
    B2 186 226 276 342 432 532 668 800 1000 1250*1000
    H2 135 165 195 225 280 340 430 520 630 760
    δ2 3 3 4 4 4 4 6 6 8 8
    n2 8 8 8 8 8 8 8 16 20 22
    Φ2 9 9 9 13 163 17 17 14 18 18
    R 93 113 138 171 216 266 334 419 522 647

    结构分类

    1.从输送物料位移方向的角度来分,可分为水平螺旋输送机和倾斜螺旋输送机。
    2.从内部结构和输送形式上来分,可分为有轴螺旋输送机(LS螺旋输送机)和无轴螺旋输送机(LSS螺旋输送机)。有轴螺旋输送机适用无粘性的干粉物料和小颗粒物料,例如水泥、粉煤灰、石灰、粮等;无轴螺旋输送机适于粘性和易缠绕的物料,例如污泥、生物质、垃圾等。
    3.从外形结构上来分,可分为单螺旋输送机和双螺旋输送机。
    4.从名称上来分,我公司还有不锈钢螺旋输送机、变频螺旋输送机、小型螺旋输送机、绞龙螺旋输送机等等各式各样的螺旋输送机。
     
    螺旋输送机结构图

    维护保养

    1.设备在运转时如果发出了刺耳噪声,应立即打盖检查,及时排除故障。
    2.应按说明书上的标准输送量输送物料,不可过载,否则物料排不出,引起螺旋轴弯曲和箱体涨坏。
    3.设备运行时有时刻注意箱体的伸缩变化,看看是否自由或有否卡着的地方,如有抓紧解决处理。
    4.设备停机后,要及时检查螺旋叶片,如有磨损必须补焊,严重时必须更换。
     
    变频螺旋输送机
     
    安装与调整
     
    1.空载试车时,轴承不能漏油,且轴承温升不超过20℃。负载试车时,轴承温升不得超过30℃。
    2.驱动装置轴与螺旋轴应保持良好的同轴度。调整时可借助垫片调节驱动装置的高度。
    3.料槽各节间连接处应紧密,不能出现错位现象。节与节间、顶盖与料槽间可加垫片,以保证料槽的密封,同时,还可调节料槽的长度误差。
    4.中间悬挂轴承应可靠而恰当地支承连接轴,以免螺旋轴产生径向变形。安装可通过调整轴承轴瓦间垫片达到要求。
    5.料槽内壁与螺旋体周围的间隙应相等,螺旋体安装后应对其进行平衡试验。

    客户案例

    ZZF放矿机制作完毕
    ZZF放矿机制作完毕

    加工物料:石块

    生产能力:300-750t/h

    设备配置:ZZF2.5*1.2

    查看详情
    不锈钢长方形直线筛发货
    不锈钢长方形直线筛发货

    加工物料:

    生产能力:

    设备配置:

    查看详情
    建筑垃圾再生处理生产线
    建筑垃圾再生处理生产线

    加工物料:建筑垃圾

    生产能力:≤100m³h

    设备配置:圆盘给料机

    查看详情
    麻豆AV免费在线看SL-U₁30/1.5-A运行现
    麻豆AV免费在线看SL-U₁30/1.5-A运行现

    加工物料:矿石

    生产能力:200t/h

    设备配置:SL-U₁30/1.5-A麻豆AV免费在线看

    查看详情

    推荐产品

    

    新乡市91麻豆精品网站机械设备有限公司 豫ICP备89202675号-2 技术支持新乡志远网络公司  地 址:新乡市长济高速西出口

    .getElementsByTagName("script")[0]; s.parentNode.insertBefore(bp, s); })();
    在线咨询
    索要报价
    销售热线

    销售热线:18637334419

    网站地图